装修首页
找公司
装修设计
装修公司
二手房精装
监理
园艺景观
精选作品
VR全景
网友案例
特色推荐
服务明星
装修招标
装修学堂
建材家居
手机浏览
装修公众号
扫一扫,快速获得最新装修资讯
装修小程序
扫一扫,快速找商家、查订单!
社区
注册
登录
鸿鹄设计
装SHOW节设计大赛
2017年度
最佳功能改造奖
2016年度
简约风格人气奖
室内装修设计大赛
第二届
最佳空间设计奖
第二届
优秀设计作品奖
第一届
别墅优秀设计奖
我的订单
装修首页
>>
首页
简介/服务流程
金奖设计
作品库
服务明星
会员评论
装修视频
VR全景
案例库
装修首页
>
精选作品
>
鸿鹄设计
>
【有间】精装房的日式北欧大改造
收藏
分享
新浪微博
QQ空间
【有间】精装房的日式北欧大改造
浏览675
评论0
收藏
0
发布时间:2021-02-02
客厅(5)
餐厅(4)
卧室(2)
书房(1)
厨房(1)
其它(2)
风格:日式
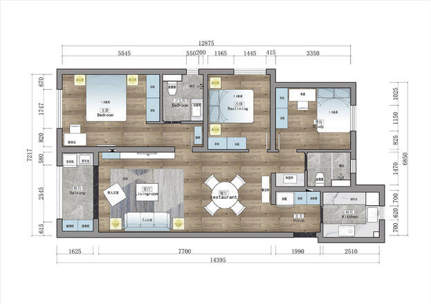
房型:三房
面积:118平米
造价:半包 11万元
设计费:1.8万元
客厅
整个空间通铺年轮风格的地板,色调年轻,摸上去会有木纹的肌理感,北欧中不乏日式风质感。客厅沙发背景墙选择了留白处理,可以很好的避免空间产生局促感。
作品介绍
业主情况:
这里是只属于业主的小窝,温馨舒适有爱情,能够在下雨天窝在家里看无聊的电影,没事发个呆,泡泡茶喝个小酒
业主要求:
精装房改造
设计理念:
用经典的灰、白、木搭配,营造了清新明亮、自然温暖空间的氛围
装修清单
造价:
半包 11万元
人工费:
4万元
设计费:
1.8万元
区域
项目
品牌
型号规格
客厅
餐厅
卧室
书房
厨房
卫生间
阳台露台
其它
免费预约
总预约量:8880
*预约享: 订单礼、到店礼;
更多作品
>>
本店其他作品
法式
【万科红郡】顶楼复式
混搭
【时髦复古风】
混搭
【喵星人和朋友们】金奖设计
预约提醒
亲爱的会员
您********的号码
今天已预约过
20个商家
已达到上限,请明天再来!
免费预约
*
联系人手机号
*
验证码
获取验证码
秒后重新获取
重新获取校验码
联系人姓名
装修房区域
上海市
备注
您的预约已成功!
稍后我们将商家联系信息发送到
您******的号码上
商家会在24小时内尽快联系您,
如果短信收取有延误也可到
我的订单
里查看您的预约信息!
同时我们会将商家相关联系信息发送到您的微信,请注意查收
关注篱笆装修公众号,更多装修服务和信息等着您