- 装SHOW节设计大赛
-
2017年度
最佳功能改造奖
-
2016年度
简约风格人气奖
- 室内装修设计大赛
-
第二届
最佳空间设计奖
-
第二届
优秀设计作品奖
-
第一届
别墅优秀设计奖
【姿态】84北欧
- 浏览526
- 评论0
- 收藏2
- 发布时间:2021-02-02
- 风格:现代简约
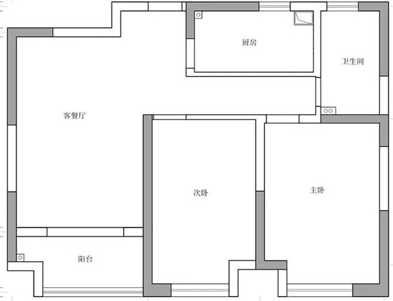
- 房型:两房
- 面积:84平米
- 造价:半包 8万元
- 设计费:0.8万元
作品介绍
- 业主情况:婚房设计
- 业主要求:原户型是比较常见的中间户型。业主有阅读习惯,需要一个独立书桌;需要尽可能多的储物收纳空间。
- 设计理念:温暖、明亮
装修清单
- 造价:半包 8万元
- 人工费:3.3万元
- 设计费:0.8万元
| 区域 |
项目 |
品牌 |
型号规格 |
| 客厅 |
|
|
|
| 餐厅 |
|
|
|
| 卧室 |
|
|
|
| 书房 |
|
|
|
| 厨房 |
|
|
|
| 卫生间 |
|
|
|
| 阳台露台 |
|
|
|
| 其它 |
|
|
|
免费预约
总预约量:8880
*预约享: 订单礼、到店礼;